聯系電話如果您正在尋找相關產品或有其他任何問題,可隨時撥打我公司銷售熱線:400-8789-055
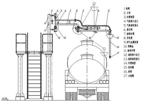
在線咨詢深奧圖公司下裝鶴管,底部密閉裝車系統,該系統包括底部干式分離閥、接頭停靠裝置、底裝鶴管及油氣回收接頭等設備。底部裝車系統具有連接方便快捷、操作輕便靈活、勞動強度低、脫開無殘留介質、使用壽命長等優點,符合API標準。
● 快速自封干式分離閥(API接頭)
快速自封干式分離閥是專門為底部密閉裝車設計,該裝置是一種安全的鶴管和油罐車之間的連接部件,主要用于標準的下裝罐車的快速連接,實現從罐車下部裝載液體介質。
快速自封干式分離閥(API接頭)具有快速結合與快速分離的特點,特別在快速結合與分離的過程中兩端都能自動封閉,基本做到無泄漏。
快速自封干式分離閥(API接頭)的連接尺寸和質量要求完全執行美國石油學會API RP1004《油罐車的底部裝卸及油氣回收裝置》的標準。
● 底部裝車系統
底部裝車系統是指將一組底部裝車鶴管、一個油氣回收軟管以及發油系統、儀器儀表、閥門等設備集中放置于同一底座結構上的裝置,具有結構緊湊、操作方便、安全可靠等優點,是未來汽車液體裝車的必備設施之一。
主要特點:
1.保證灌裝臂的操作人員的安全是最重要的優點,因為操作人員可以停留在地面上,而不需要站到槽車頂上,從而避免了跌落的危險。
2.底部灌裝不容易造成儲槽內的湍流,減少了產生靜電的危險。
3.在快速結合與快速分離的過程中,泄漏優于美國石油學會APIRP1004標準要求。
4.鶴管旋轉接頭遵循長壽命零泄漏設計,主密封采用聚四氟乙烯加不銹鋼彈性圈補償結構;不但密封可靠,還有磨損補償。接頭軸承采用復式滾道,能承受苛刻的軸向、徑向力矩負荷,承受力大、轉動靈活。
5.底部灌裝不僅減少了危害環境的油氣產生,而且更容易配合油氣回收裝置,將灌裝過程中排出的油氣完全回收。
6.速度是底部灌裝最重要的優勢,因為這種方式能更快地裝滿儲罐,而且可以同時對多艙進行灌裝從而縮短了總體灌裝時間。
7.與頂部灌裝裝車臺相比,底部灌裝裝車臺比較簡單,安裝費用也較低。同時因能在較短時間內安全地灌裝更多物料,且能減少跑溢和油氣損失,因而為客戶節約了更多成本。www.fzwnx.cn 裝車鶴管

專業智能一卡通裝卸車系統廠家,在國內外積累了豐富的施工經驗,歡迎您預約就近省份地區的實地案例進行考察。










































