聯系電話4008789055
如果您正在尋找相關產品或有其他任何問題,可隨時撥打我公司銷售熱線:400-8789-055
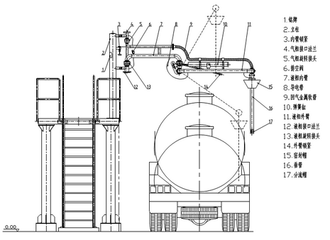
在線咨詢什么是裝卸車鶴管?裝卸車鶴管,又稱液體裝卸臂,由旋轉接頭、內臂、外臂、垂管(主要陸用)、三維接頭(主要船用),平衡器、控制系統等部件組成,主要用于汽車槽車、火車槽車或槽船裝卸液體介質的裝卸設備。

鶴管有什么特點?鶴管特點:
相比老式的軟管連接,鶴管采用硬連接方式,加上緊急脫離等安全裝置,可以有效防止爆管、斷裂等情況的發生,具有很高的安全性;
旋轉接頭采用德國先進雙輥道工藝,360度轉向輕便,安全無滲漏,維護保養方便;
操作靈活,隨遇平衡的彈簧缸平衡器使得裝卸臂操作輕便、省力,單人即可完成管道與槽車的連接,輕松控制裝卸過程;
根據客戶裝卸范圍要求定制尺寸,裝卸過程中,在槽車正常移動范圍內與槽車隨動;
管道根據不同的液體介質采用碳鋼、不銹鋼、鋁合金等材料,使用壽命長;
管道可以襯四氟及加裝裝伴熱裝置,可以輸送多種特殊液體介質,如鹽酸、瀝青、原油等;
采用密閉裝卸操作方式,可減少介質的揮發,減輕對環境的污染;

什么是裝卸車鶴管?鶴管有什么特點?鶴管 汽(火)車鶴管 液氨鶴管哪家好?如何選擇優質鶴管?選擇合適的鶴管,就選鶴管(流體裝卸臂)品牌生產廠家深奧圖(Autower)即深圳市奧圖威爾科技有限公司全國采購熱線4008789055,讓您安全放心!

專業智能一卡通裝卸車系統廠家,在國內外積累了豐富的施工經驗,歡迎您預約就近省份地區的實地案例進行考察。
